ÁBACO
Bioclimática, Sostenibilidad e Integración del Paisaje
ÁBACO
Cliente: Mojica Constructora
Ubicación: Cajicá, Cundinamarca
Año: 2013 – 2016
Área Total Construida: 13700m2
Unidades: 88 Viviendas Bifamiliares
MÁS INFO +
Ábaco es un condominio campestre ubicado en Cajicá, Cundinamarca, en una zona de la ciudad desde la cual es posible contemplar y disfrutar de las condiciones propias del paisaje natural rural.
El proyecto está compuesto por ochenta y ocho casas distribuidas sobre un trazado urbano diseñado a partir de criterios de asoleamiento; el cual, interpreta de manera rigurosa la trayectoria solar y por tanto aprovecha las condiciones climáticas para aplicar medidas pasivas de sostenibilidad en el urbanismo y al interior de las viviendas.
Las viviendas de Ábaco, son volúmenes de geometría sencilla, abiertos para el disfrute del paisaje y diseñadas para el aprovechamiento de las condiciones climáticas del lugar y un bajo consumo de agua y energía.
CRITERIOS DE COMPOSICIÓN
Relación de las Viviendas con el Exterior y Criterios Geométricos
MÁS INFO +
La configuración de las viviendas de Ábaco fueron diseñadas con una distribución en forma de L alrededor del jardín, lo cual, permite la integración de los espacios interiores con el exterior por medio de grandes ventanales, sin afectar la privacidad de los ocupantes; esta estrategia de fachadas abiertas facilita el acceso de iluminación y ventilación natural.
Las viviendas se constituyen de dos volúmenes sencillos, que rematan en cubiertas inclinadas hacia sur, lo cual, corresponde a una estrategia para facilitar la instalación posterior de paneles solares fotovoltaicos de manera ideal para la mayor captación posible de radiación solar.
PROCESO CONSTRUCTIVO
Sistema de Dobles Muros
MÁS INFO +
El diseño de las viviendas apuesta por un lenguaje arquitectónico y constructivo que dialoga con el entorno circundante, haciendo uso de un sistema constructivo de dobles muros de ladrillo, compuesto por un muro interior de ladrillo estructural y uno exterior de ladrillo a la vista.
El sistema constructivo empleado en las viviendas de Ábaco es una apuesta muy económica que reduce máximo el costo de la estructura, mediante el uso de muros portantes de mampostería estructural. La practicidad del sistema hace de la construcción un proceso rápido, fácilmente desarrollable con mano de obra, materiales y tecnología local.
ANÁLISIS MEDIOAMBIENTAL
Bioclimática, Confort y Sostenibilidad
MÁS INFO +
El sistema constructivo hizo posible la incorporación de la estrategia de masa térmica en la envolvente de las viviendas, ya que, los muros exteriores acumulan calor durante el día y lo liberan en la noche, garantizando un óptimo confort térmico en los espacios interiores sin generar costos adicionales en estructura y materiales.
Las cubiertas de las viviendas se orientaron a 10° Sur y se dotaron con todo el sistema de ductos y circuitos eléctricos necesario para que los propietarios puedan instalar posteriormente sistemas de paneles fotovoltaicos sobre ellas y tengan la posibilidad de captar energía solar para la reducción de consumo de energía.
Adicionalmente, las viviendas se entregaron dotadas con la tecnología necesaria para tener bajos niveles de consumo de agua y energía; cada casa cuenta con iluminación LED, lavavajillas, sanitarios de bajo consumo y griferías ahorradoras.
- Porcentajes de Ahorro de Agua: Reducción de aproximadamente el 30% del consumo mediante la incorporación de sistema de reutilización de agua. El sistema capta y trata el 50% del agua de las duchas, la cual se suministra al 100% de los sanitarios del proyecto.
- Porcentaje de Ahorro de Energía: Reducción de 30% de consumo – Estrategias de Iluminación Natural, dotación de viviendas con iluminación LED y posibilidad de reducción mayor si se actualiza a energía solar.
IMÁGENES Y DETALLES
Elementos Constructivos de Fachada
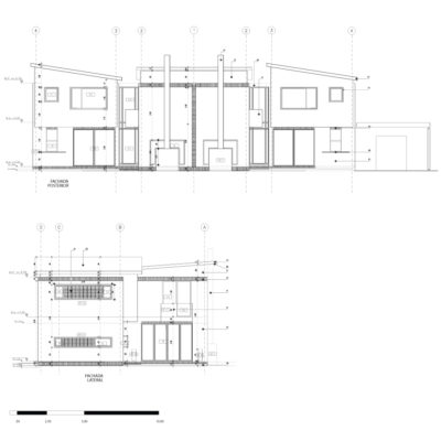
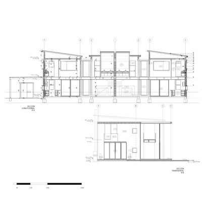
PLANIMETRÍA
Secciones de las Unidades de Vivienda y Detalles de Dobles Muros en Ladrillo


