+57 (1) 765 9487 info@57uno.com

VIVIENDA DE INTERÉS SOCIAL

NATIVA PARK
Segunda Vivienda Productiva
VIVIENDA DE INTERÉS SOCIAL

NATIVA PARK

Segunda Vivienda Productiva

NATIVA PARK

Cliente: Constructora Actual

Ubicación: Villeta, Cundinamarca

Año: 2018

MÁS INFO +

El proyecto desarrolla una propuesta de vivienda de descanso (Segunda Vivienda), a través de, un esquema de distribución al interior de los apartamentos,que permite el arriendo de una habitación con acceso independiente. Esta propuesta habilita la posibilidad de un modelo de negocio y propone a la vivienda como unidad productiva a escala.

CRITERIOS DE COMPOSICIÓN

Esquema de Emplazamiento y Zonificación

MÁS INFO +
La propuesta de zonificación de Nativa Park, 

ANÁLISIS MEDIOAMBIENTAL

Bioclimática, Confort y Sostenibilidad

MÁS INFO +

Desde su implantación, Nativa Park desarrolla un planteamiento que permite la reducción de los efectos de sobrecalentamiento generados por la radiación solar y permite la renovación de aire al interior de las viviendas orientando sus aberturas hacia las corrientes de aire predominantes. 

Al interior de los apartamentos 

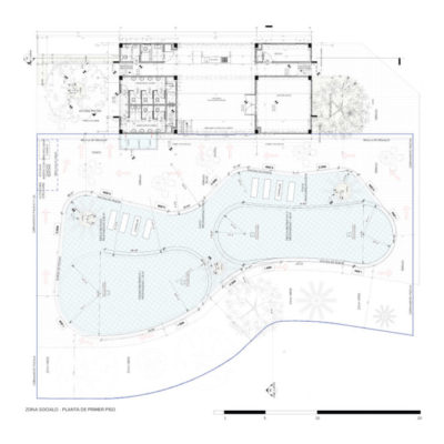
PLANIMETRÍA

Plantas, Alzados y Secciones de Zonas Comunes

Contáctenos

info@57uno.com

Carrera 9 # 67A-19, Oficina 402

+57 (1) 805 1869

Bogotá – Colombia